鈴が峰第二住宅5号棟(JS)

1,590万円

広島県広島市西区鈴が峰町35-16

バス「鈴が峰住宅中」バス停

山陽本線「新井口」駅徒歩8分

広島電鉄宮島線「商工センター入口」駅徒歩7分

価格
1,590万円
間取り
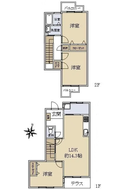
3LDK
向き
所在地
広島県広島市西区鈴が峰町35-16
交通

バス「鈴が峰住宅中」バス停下車 徒歩2分

山陽本線新井口」駅 徒歩8分

広島電鉄宮島線商工センター入口」駅 徒歩7分

専有面積
80.75㎡
築年月
1979年8月(築46年)

物件の特徴

  • TVモニタ付きインターホン

セールスポイント

【案内予約受付中!】
◆JR新井口駅まで徒歩8分 通勤通学に便利な立地
◆南向き◆両面バルコニー◆専用庭有り◆メゾネット
◆小中学校近くお子様通学も安心です

ポイント

テラス シャワー付洗面台 人感照明センサー 2沿線利用可 南向き

担当者のコメント

【案内予約受付中!】
◆JR新井口駅まで徒歩8分 通勤通学に便利な立地
◆南向き◆両面バルコニー◆専用庭有り◆メゾネット
◆小中学校近くお子様通学も安心です

基本情報

管理費
3,000円
修繕積立金
7,000円
修繕積立基金
-
間取り / 詳細
3LDK
LDK 14.3帖 1室/洋室 1室/洋室 2室
向き
専有面積
80.75㎡
バルコニー面積
3.50㎡
その他面積
-
-
-
所在階 / 階建て
1-2階 / 4階建
建物構造
鉄筋コンクリート
築年月
1979年8月(築46年)
種別
中古マンション
駐車場 / 月額
空有 / -
土地権利
所有権
土地
(敷金 / 保証金)
- / -
国土法届出要否
不要
接道状況
-
用途地域
第一種中高層住居専用
地勢
高台
都市計画
市街化区域
現況
空家
引渡し
即時
取引態様
仲介
棟総戸数
8戸
管理形態
管理会社に全部委託
管理会社 /
管理組合有無
日本ハウズイング / 有
その他条件
専用庭使用料月:600円
取引条件の
有効期限
2026年04月27日

設備条件

設備条件
  • 専用庭 / 2面バルコニー / 食器洗い乾燥機 / TVモニタ付インターホン
設備(その他)
    -

その他

物件番号
98379188
管理コード
45295
建築確認番号
-
情報更新日
2026年04月13日
次回更新予定日
2026年04月27日
取扱会社
  • 丸和不動産販売株式会社
  • 広島県広島市西区庚午中4丁目6-1-202 セントラル桑原
  • TEL:0800-200-8080
  • 広島県知事 (1) 第11171号
備考
◆◇◆◇◆◇◆◇◆◇◆◇◆◇◆◇◆◇◆◇◆◇◆◇◆◇◆◇◆◇◆◇◆◇◆◇◆◇◆◇◆

《取り扱い物件多数!他にもご紹介可能!》

本物件の他にオリジナル物件なども多数取り扱っております!
↓↓丸和不動産販売ホームページはこちら
https://maruwa-fud.co.jp/
当社ホームページに掲載されていない物件でもご紹介可能ですので、お気軽にお問い合わせください。 既に気になる物件がおありのお客様からの個別相談も受け付けております。

《不動産のことなら何でもご相談ください!》

仲介・建売・買取再販・リフォーム工事・注文住宅等、不動産のことなら何でも手掛けております。 駐車場も完備しておりますのでお気軽にお越しください。

《住宅ローンに自信あり!》

経験と実績豊富なスタッフが対応しますので、お客様に最適な金融機関、納得のいくご提案ができます。 住宅ローンに不安をお持ちの方も、既に住宅ローンを否決されてしまった方も、まずは当社にご相談ください!

《お問い合わせ方法いろいろ♪》

・お電話(フリーダイアル) ・メール ・ラインでのお問い合わせもはじめました! ↓↓ https://lin.ee/OnuFEBC もしくはライン公式アカウント『丸和不動産販売』で検索下さい♪

◆◇◆◇◆◇◆◇◆◇◆◇◆◇◆◇◆◇◆◇◆◇◆◇◆◇◆◇◆◇◆◇◆◇◆◇◆◇◆◇◆

周辺施設

  • 広島市立鈴が峰小学校の画像

    小学校

    広島市立鈴が峰小学校

    217m(3分)

  • 広島鈴が峰郵便局の画像

    郵便局

    広島鈴が峰郵便局

    289m(4分)

  • 広島市立井口台中学校の画像

    中学校

    広島市立井口台中学校

    463m(6分)

  • 井口ルンビニー幼稚園の画像

    幼稚園

    井口ルンビニー幼稚園

    504m(7分)

  • セブンイレブン 広島草津梅が台店の画像

    コンビニエンスストア

    セブンイレブン 広島草津梅が台店

    603m(8分)

  • アルパークの画像

    ショッピングセンター

    アルパーク

    891m(12分)

  • ウォンツ 井口明神店の画像

    ドラッグストア

    ウォンツ 井口明神店

    1015m(13分)

  • Maxvalu(マックスバリュ) エクスプレス草津南店の画像

    スーパー

    Maxvalu(マックスバリュ) エクスプレス草津南店

    1227m(16分)

  • 山口銀行広島西支店の画像

    銀行

    山口銀行広島西支店

    1246m(16分)

  • 鈴が峰公園の画像

    公園

    鈴が峰公園

    1247m(16分)

支払いシミュレーション

月々の支払額

※実際の金額と異なる場合があります。

購入希望物件価格
万円
頭金
万円
金利
%
返済額(ボーナス1回分)
万円
返済期間

※ボーナスは自動で年2回分で計算されます。

近隣の物件

  1. パークハイム庚午中

    広島市西区庚午中2丁目

    3LDK (84.58㎡)

    2,398万円

  2. ダイアパレス草津ガーデンコート

    広島市西区草津東1丁目

    3LDK (70.08㎡)

    2,799万円

  3. パークハイム観音

    広島市西区南観音3丁目

    3LDK (58.08㎡)

    899万円

  4. ローレルコート観音新町

    広島市西区観音新町1丁目

    3LDK (84.21㎡)

    3,199万円

よく見られている物件

  1. ライオンズマンション空港通り

    広島市西区南観音2丁目

    1R (16.20㎡)

    285万円

  2. 鈴が峰第二住宅5号棟(JS)

    広島市西区鈴が峰町

    3LDK (80.75㎡)

    1,590万円

  3. ブルーシャトービル

    広島市中区東平塚町

    1LDK (55.33㎡)

    850万円

  4. メゾン・ド・セレニテ(JS)

    広島市中区光南2丁目

    1R (18.90㎡)

    140万円

鈴が峰第二住宅5号棟(JS)

鈴が峰第二住宅5号棟(JS)

1,590万円

3,000円

3LDK(80.75㎡)

お気軽にお問い合わせください

LINEからお問い合わせ 無料お問い合わせ

丸和不動産販売株式会社

0800-200-8080

9:00~18:00

(休:土・日・祝祭日・年末年始、GW、夏季休暇 )