広島市東区福田1丁目 新築一戸建て(全2棟)

2,786万円

広島県広島市東区福田1丁目

バス「記念碑前」バス停

価格
2,786万円
間取り
3LDK
土地面積
170.18㎡
所在地
広島県広島市東区福田1丁目
交通

バス「記念碑前」バス停下車 徒歩3分

建物面積
96.87㎡
築年月
2025年6月(新築)

物件の特徴

  • TVモニタ付きインターホン

セールスポイント

【案内予約受付中!】
◆オール電化・エコキュートの省エネ住宅
◆広々16帖のLDK◆2階にはサンルーム完備
◆家事動線がスムーズな間取り

ポイント

トイレ2ヶ所 温水洗浄便座 3口以上コンロ 収納豊富 ウォークインシューズクロゼット

担当者のコメント

【案内予約受付中!】
◆オール電化・エコキュートの省エネ住宅
◆広々16帖のLDK◆2階にはサンルーム完備
◆家事動線がスムーズな間取り

基本情報

販売戸数
1戸
総戸数
2戸
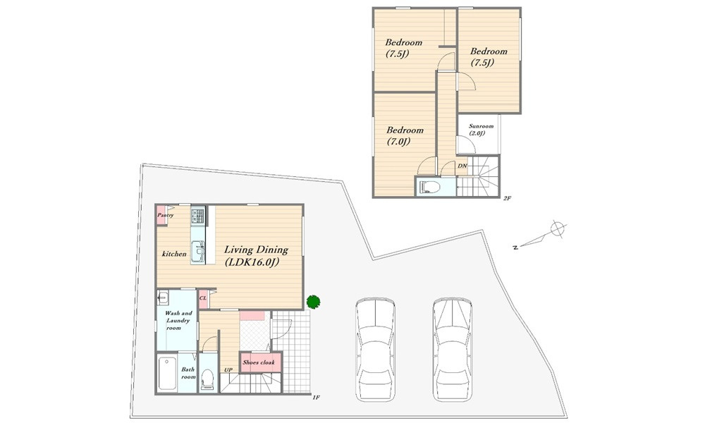
間取り / 詳細
3LDK
LDK 16.0帖 1室/洋室 7.5帖 1室/洋室 7.5帖 1室/洋室 7.0帖 1室
1F 16LDK SIC ランドリールーム2F 7.5洋 7.5洋 7洋 2サンルーム トイレ
向き
北東
建物面積(坪数)
96.87㎡(29.3坪)
土地面積(坪数)
170.18㎡(51.47坪)
建ぺい率 /
容積率
50%/100%
築年月
2025年6月(新築)
駐車場 /
月額料金
有(2台) 0円 並列2台可
土地権利
所有権
土地
(敷金 / 保証金)
- / -
建物構造
木造 / 2階建
傾斜地部分面積
-
路地状敷地
-
私道負担面積
-
セットバック
高圧線下面積
-
施工会社
-
用途地域
第一種低層住居専用
地目 / 地勢
宅地 / -
接道状況
-(南東 公道 4.0m)
国土法届出要否
不要
都市計画
-
総区画数 /
販売区画数
2区画/1区画
現況
完成済み
その他
法令上の制限
-
取引態様
仲介
引渡し
相談
取引条件の
有効期限
2026年01月28日

設備条件

設備条件
  • 陽当り良好 / 公営水道 / 公共下水 / オール電化 / 24時間換気システム / 駐車2台可 / 食器洗い乾燥機 / システムキッチン / 追焚機能浴室 / 温水洗浄便座 / 洗髪洗面化粧台 / トイレ2ヶ所 / 浴室1坪以上 / ウォークインシューズクロゼット / 収納豊富 / TVモニタ付インターホン / 複層ガラス
設備(その他)
    公営水道、公共下水、オール電化

その他

物件番号
97778958
管理コード
36140
建築確認番号
第R06認広建セ02638号
情報更新日
2026年01月14日
次回更新予定日
2026年01月28日
取扱会社
  • 丸和不動産販売株式会社
  • 広島県広島市西区庚午中4丁目6-1-202 セントラル桑原
  • TEL:0800-200-8080
  • 広島県知事 (1) 第11171号
備考
◆◇◆◇◆◇◆◇◆◇◆◇◆◇◆◇◆◇◆◇◆◇◆◇◆◇◆◇◆◇◆◇◆◇◆◇◆◇◆◇◆

《取り扱い物件多数!他にもご紹介可能!》

本物件の他にオリジナル物件なども多数取り扱っております!
↓↓丸和不動産販売ホームページはこちら
https://maruwa-fud.co.jp/
当社ホームページに掲載されていない物件でもご紹介可能ですので、お気軽にお問い合わせください。 既に気になる物件がおありのお客様からの個別相談も受け付けております。

《不動産のことなら何でもご相談ください!》

仲介・建売・買取再販・リフォーム工事・注文住宅等、不動産のことなら何でも手掛けております。 駐車場も完備しておりますのでお気軽にお越しください。

《住宅ローンに自信あり!》

経験と実績豊富なスタッフが対応しますので、お客様に最適な金融機関、納得のいくご提案ができます。 住宅ローンに不安をお持ちの方も、既に住宅ローンを否決されてしまった方も、まずは当社にご相談ください!

《お問い合わせ方法いろいろ♪》

・お電話(フリーダイアル) ・メール ・ラインでのお問い合わせもはじめました! ↓↓ https://lin.ee/OnuFEBC もしくはライン公式アカウント『丸和不動産販売』で検索下さい♪

◆◇◆◇◆◇◆◇◆◇◆◇◆◇◆◇◆◇◆◇◆◇◆◇◆◇◆◇◆◇◆◇◆◇◆◇◆◇◆◇◆

広島市東区福田1丁目 新築一戸建て(全2棟)の他の物件

  1. 3LDK (97.71㎡)

    2,593万円(87.75万円/坪)

周辺施設

  • 安芸みのる幼稚園の画像

    幼稚園

    安芸みのる幼稚園

    344m(5分)

  • YOURS(ユアーズ) 福田店の画像

    スーパー

    YOURS(ユアーズ) 福田店

    508m(7分)

  • 広島銀行福田支店の画像

    銀行

    広島銀行福田支店

    552m(7分)

  • ふくだタカズミ薬局の画像

    ドラッグストア

    ふくだタカズミ薬局

    725m(10分)

  • 広島福田郵便局の画像

    郵便局

    広島福田郵便局

    725m(10分)

  • 広島市立福木小学校の画像

    小学校

    広島市立福木小学校

    741m(10分)

  • 広島市立福木中学校の画像

    中学校

    広島市立福木中学校

    908m(12分)

  • セブンイレブン 広島馬木店の画像

    コンビニエンスストア

    セブンイレブン 広島馬木店

    1252m(16分)

支払いシミュレーション

月々の支払額
9.6
購入希望物件価格
万円
頭金
万円
金利
%
返済額(ボーナス1回分)
万円
返済期間

※ボーナスは自動で年2回分で計算されます。

近隣の物件

  1. 広島市東区矢賀2丁目 中古一戸建て(JS)

    広島市東区矢賀2丁目

    4LDK (124.41㎡)

    2,780万円

  2. 広島市東区中山上2丁目  中古一戸建て

    広島市東区中山上2丁目

    4LDK (94.40㎡)

    2,380万円

  3. 広島市東区矢賀4丁目 新築一戸建て

    広島市東区矢賀4丁目

    1SLDK (73.29㎡)

    3,480万円

  4. 広島市東区戸坂長尾台 新築一戸建て

    広島市東区戸坂長尾台

    4LDK (103.51㎡)

    3,880万円

広島市東区福田1丁目 新築一戸建て(全2棟)

広島市東区福田1丁目 新築一戸建て(全2棟)

2,786万円

-

3LDK(96.87㎡)

お気軽にお問い合わせください

LINEからお問い合わせ 無料お問い合わせ

丸和不動産販売株式会社

0800-200-8080

9:00~18:00

(休:祝祭日・年末年始、GW、夏季休暇 )