安芸郡熊野町呉地5丁目 中古一戸建て(JS)

630万円

広島県安芸郡熊野町呉地5丁目

バス「皇帝ハイツ入口」バス停

価格
630万円
間取り/建物面積
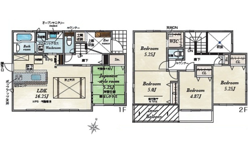
3LDK/76.17㎡
所在地
広島県安芸郡熊野町呉地5丁目
築年
1980年3月(築46年)
駐車
有(1台)(屋根有)
交通

バス「皇帝ハイツ入口」バス停下車 徒歩9分

安芸郡熊野町呉地5丁目 中古一戸建て(JS)の基本情報

物件名
安芸郡熊野町呉地5丁目 中古一戸建て(JS)
価格
630万円
建物面積
76.17㎡
土地面積
44.66坪(147.65㎡)
築年月
1980年3月(築46年)
総戸数
-
所在地
広島県安芸郡熊野町呉地5丁目
交通

バス「皇帝ハイツ入口」バス停下車 徒歩9分

安芸郡熊野町呉地5丁目 中古一戸建て(JS)の詳細情報

設備条件
  • 閑静な住宅地
設備(その他)
    公営水道、公共下水、個別プロパン
駐車場/月額
有(1台)(屋根有)/0円
土地権利
所有権
国土法届出
不要
用途地域
第一種低層住居専用
取引態様
仲介
引渡し
相談

安芸郡熊野町呉地5丁目 中古一戸建て(JS)で募集中の物件

  1. 23.04坪 (76.17㎡)

    630万円(14.11万円/坪)

周辺施設

  • ももたろう薬局熊野店の画像

    ドラッグストア

    ももたろう薬局熊野店

    1195m(15分)

  • ファミリーマート 熊野川角店の画像

    コンビニエンスストア

    ファミリーマート 熊野川角店

    1212m(16分)

  • 熊野町立熊野第四小学校の画像

    小学校

    熊野町立熊野第四小学校

    1235m(16分)

  • HOME CENTER TIME(ホーム センター タイム) 熊野店の画像

    ホームセンター

    HOME CENTER TIME(ホーム センター タイム) 熊野店

    1256m(16分)

  • ハローズ 熊野店の画像

    スーパー

    ハローズ 熊野店

    1377m(18分)

  • 熊野郵便局の画像

    郵便局

    熊野郵便局

    1515m(19分)

  • くまの・みらい保育園の画像

    保育園

    くまの・みらい保育園

    1744m(22分)

  • 広島県信用組合 西熊野支店の画像

    銀行

    広島県信用組合 西熊野支店

    1833m(23分)

  • 熊野町立熊野東中学校の画像

    中学校

    熊野町立熊野東中学校

    2473m(31分)

近隣の物件

  1. 安芸郡熊野町平谷2丁目

    3LDK (99.36㎡)

    480万円

  2. 安芸郡熊野町東山

    4LDK (108.89㎡)

    2,990万円

  3. 安芸郡熊野町川角1丁目

    3SLDK (91.52㎡)

    2,680万円

  4. 安芸郡熊野町城之堀1丁目

    4LDK (111.57㎡)

    2,680万円

よく見られている物件

  1. 広島市佐伯区八幡東4丁目

    4LDK (110.53㎡)

    2,880万円

  2. 広島市西区古江西町

    3LDK (90.67㎡)

    4,480万円

  3. 広島市佐伯区美鈴が丘西4丁目

    4LDK (100.60㎡)

    4,090万円

  4. 広島市安佐北区亀崎1丁目

    3LDK (82.81㎡)

    3,280万円

安芸郡熊野町呉地5丁目 中古一戸建て(JS)

お気軽にお問い合わせください

LINEからお問い合わせ 無料お問い合わせ

丸和不動産販売株式会社

0800-200-8080

9:00~18:00

(休:祝祭日・年末年始、GW、夏季休暇 )