安芸郡熊野町東山 新築一戸建て

2,790万円

広島県安芸郡熊野町東山21-

バス「団地西入口」バス停

バス「境橋」バス停

価格
2,790万円
間取り/建物面積
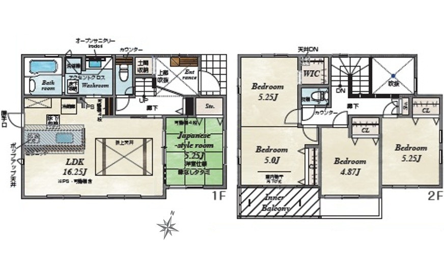
4LDK/108.89㎡
所在地
広島県安芸郡熊野町東山21-
築年
2025年12月(新築)
駐車
有(3台)
交通

バス「団地西入口」バス停下車 徒歩5分

バス「境橋」バス停下車 徒歩6分

安芸郡熊野町東山 新築一戸建ての基本情報

物件名
安芸郡熊野町東山 新築一戸建て
価格
2,790万円
建物面積
108.89㎡
土地面積
51.67坪(170.81㎡)
築年月
2025年12月(新築)
総戸数
1戸
所在地
広島県安芸郡熊野町東山21-
交通

バス「団地西入口」バス停下車 徒歩5分

バス「境橋」バス停下車 徒歩6分

安芸郡熊野町東山 新築一戸建ての詳細情報

設備条件
  • 建設住宅性能評価書付
  • 駐車3台可
  • 耐震構造
設備(その他)
    公営水道、公共下水、オール電化
駐車場/月額
有(3台)/0円
土地権利
所有権
国土法届出
不要
用途地域
第一種中高層住居専用
取引態様
仲介
引渡し
即時

安芸郡熊野町東山 新築一戸建てで募集中の物件

  1. 2号棟

    32.93坪 (108.89㎡)

    2,790万円(84.73万円/坪)

周辺施設

  • 認定こども園第二聖徳幼稚園の画像

    幼稚園

    認定こども園第二聖徳幼稚園

    230m(3分)

  • Aコープ 熊野団地店の画像

    スーパー

    Aコープ 熊野団地店

    277m(4分)

  • JA安芸団地支店の画像

    銀行

    JA安芸団地支店

    301m(4分)

  • 熊野西郵便局の画像

    郵便局

    熊野西郵便局

    401m(6分)

  • ドラッグストアWants(ウォンツ) 熊野平谷店の画像

    ドラッグストア

    ドラッグストアWants(ウォンツ) 熊野平谷店

    492m(7分)

  • セブンイレブン 安芸熊野町平谷店の画像

    コンビニエンスストア

    セブンイレブン 安芸熊野町平谷店

    545m(7分)

  • 熊野町立熊野第三小学校の画像

    小学校

    熊野町立熊野第三小学校

    645m(9分)

  • 熊野町立熊野中学校の画像

    中学校

    熊野町立熊野中学校

    2256m(29分)

近隣の物件

  1. 安芸郡熊野町呉地5丁目

    3LDK (76.17㎡)

    630万円

  2. 安芸郡熊野町平谷2丁目

    3LDK (99.36㎡)

    480万円

  3. 安芸郡熊野町城之堀1丁目

    4LDK (111.57㎡)

    2,680万円

  4. 安芸郡熊野町呉地1丁目

    3LDK (105.29㎡)

    2,150万円

よく見られている物件

  1. 広島市佐伯区八幡東4丁目

    4LDK (110.53㎡)

    2,880万円

  2. 広島市佐伯区美鈴が丘西4丁目

    4LDK (100.60㎡)

    4,090万円

  3. 広島市西区古江西町

    3LDK (90.67㎡)

    4,480万円

  4. 広島市安佐北区亀崎1丁目

    3LDK (82.81㎡)

    3,280万円

安芸郡熊野町東山 新築一戸建て

お気軽にお問い合わせください

LINEからお問い合わせ 無料お問い合わせ

丸和不動産販売株式会社

0800-200-8080

9:00~18:00

(休:土・日・祝祭日・年末年始、GW、夏季休暇 )