三原市本郷南3丁目 新築一戸建て(全5棟)

1,990万円~2,490万円

広島県三原市本郷南3丁目7-

バス「本郷南三丁目」バス停

バス「ショージ本郷店前」バス停

山陽本線「本郷」駅徒歩16分

価格
1,990万円~2,490万円
間取り/建物面積
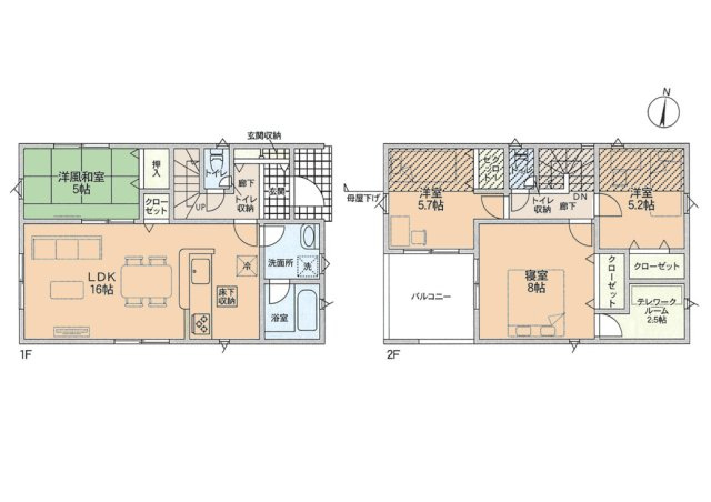
4LDK/97.20㎡~113.40㎡
所在地
広島県三原市本郷南3丁目7-
築年
2025年9月(新築)
駐車
有(3台)
交通

バス「本郷南三丁目」バス停下車 徒歩4分

バス「ショージ本郷店前」バス停下車 徒歩5分

山陽本線本郷」駅 徒歩16分

三原市本郷南3丁目 新築一戸建て(全5棟)の基本情報

物件名
三原市本郷南3丁目 新築一戸建て(全5棟)
価格
1,990万円~2,490万円
建物面積
97.20㎡~113.40㎡
土地面積
39.9坪~50坪(131.92㎡~165.29㎡)
築年月
2025年9月(新築)
総戸数
5戸
所在地
広島県三原市本郷南3丁目7-
交通

バス「本郷南三丁目」バス停下車 徒歩4分

バス「ショージ本郷店前」バス停下車 徒歩5分

山陽本線本郷」駅 徒歩16分

三原市本郷南3丁目 新築一戸建て(全5棟)の詳細情報

設備条件
  • 閑静な住宅地
  • 駐車3台可
設備(その他)
    公営水道、公共下水、個別プロパン
駐車場/月額
有(3台)/0円 3台可(車種による)
土地権利
所有権
国土法届出
不要
用途地域
第二種低層住居専用
取引態様
仲介
引渡し
即時

三原市本郷南3丁目 新築一戸建て(全5棟)で募集中の物件

  1. 2号棟

    29.40坪 (97.20㎡)

    1,990万円(49.87万円/坪)

  2. 5号棟

    31.23坪 (103.27㎡)

    2,290万円(53.9万円/坪)

  3. 4号棟

    33.81坪 (111.78㎡)

    2,330万円(51.97万円/坪)

  4. 1号棟

    34.30坪 (113.40㎡)

    2,490万円(72.59万円/坪)

周辺施設

  • ドラッグストアコスモス 三原本郷店の画像

    ドラッグストア

    ドラッグストアコスモス 三原本郷店

    216m(3分)

  • ショージ本郷店の画像

    スーパー

    ショージ本郷店

    347m(5分)

  • セブンイレブン 本郷駅東店の画像

    コンビニエンスストア

    セブンイレブン 本郷駅東店

    568m(8分)

  • 本郷郵便局の画像

    郵便局

    本郷郵便局

    601m(8分)

  • 三原市立本郷幼稚園の画像

    幼稚園

    三原市立本郷幼稚園

    927m(12分)

  • JAひろしま本郷駅前支店の画像

    銀行

    JAひろしま本郷駅前支店

    1286m(17分)

  • 三原市立本郷小学校の画像

    小学校

    三原市立本郷小学校

    1651m(21分)

  • 三原市立本郷中学校の画像

    中学校

    三原市立本郷中学校

    3354m(42分)

三原市本郷南3丁目 新築一戸建て(全5棟)

お気軽にお問い合わせください

LINEからお問い合わせ 無料お問い合わせ

丸和不動産販売株式会社

0800-200-8080

9:00~18:00

(休:祝祭日・年末年始、GW、夏季休暇 )