広島市安佐南区上安7丁目 新築一戸建て(全2棟)

2,780万円

広島県広島市安佐南区上安7丁目 

バス「上萩原」バス停

広島高速交通アストラムライン「上安」駅徒歩17分

広島高速交通アストラムライン「高取」駅徒歩20分

価格
2,780万円
間取り/建物面積
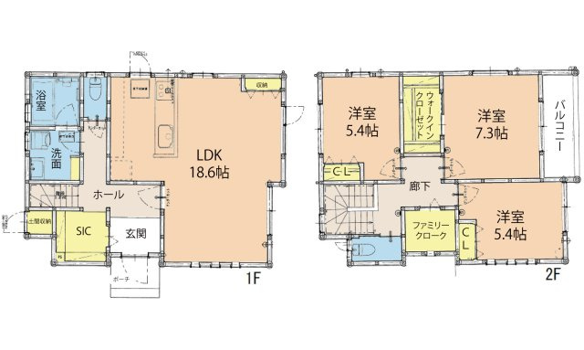
3LDK/104.90㎡
所在地
広島県広島市安佐南区上安7丁目 
築年
2025年10月(予定)
駐車
有(3台)
交通

バス「上萩原」バス停下車 徒歩5分

広島高速交通アストラムライン上安」駅 徒歩17分

広島高速交通アストラムライン高取」駅 徒歩20分

広島市安佐南区上安7丁目 新築一戸建て(全2棟)の基本情報

物件名
広島市安佐南区上安7丁目 新築一戸建て(全2棟)
価格
2,780万円
建物面積
104.90㎡
土地面積
52.75坪(174.41㎡)
築年月
2025年10月(予定)
総戸数
2戸
所在地
広島県広島市安佐南区上安7丁目 
交通

バス「上萩原」バス停下車 徒歩5分

広島高速交通アストラムライン上安」駅 徒歩17分

広島高速交通アストラムライン高取」駅 徒歩20分

広島市安佐南区上安7丁目 新築一戸建て(全2棟)の詳細情報

設備条件
  • 閑静な住宅地
  • 駐車3台可
設備(その他)
    公営水道、公共下水、オール電化
駐車場/月額
有(3台)/0円 ※駐車:普通車3台可
土地権利
所有権
国土法届出
不要
用途地域
第一種低層住居専用
取引態様
仲介
引渡し
相談

広島市安佐南区上安7丁目 新築一戸建て(全2棟)で募集中の物件

  1. A号棟

    31.73坪 (104.90㎡)

    2,780万円(87.61万円/坪)

周辺施設

  • デイリーヤマザキ 広島上安店の画像

    コンビニエンスストア

    デイリーヤマザキ 広島上安店

    553m(7分)

  • ヒカリ薬局の画像

    ドラッグストア

    ヒカリ薬局

    801m(11分)

  • 広島上安郵便局の画像

    郵便局

    広島上安郵便局

    1022m(13分)

  • 広島市立安北小学校の画像

    小学校

    広島市立安北小学校

    1164m(15分)

  • 広島市立高取北中学校の画像

    中学校

    広島市立高取北中学校

    1393m(18分)

  • 山口短期大学附属広島幼稚園の画像

    幼稚園

    山口短期大学附属広島幼稚園

    1400m(18分)

  • ゆうちょ銀行広島支店ゆめタウン安古市内出張所の画像

    銀行

    ゆうちょ銀行広島支店ゆめタウン安古市内出張所

    1644m(21分)

  • マックスバリュ 高取店の画像

    スーパー

    マックスバリュ 高取店

    1658m(21分)

近隣の物件

  1. 広島市安佐南区伴北7丁目

    2SLDK (109.90㎡)

    1,980万円

  2. 広島市安佐南区相田5丁目

    3DK (63.75㎡)

    999万円

  3. 広島市安佐南区古市4丁目

    3SLDK (109.09㎡)

    4,450万円

  4. 広島市安佐南区伴東8丁目

    3LDK (113.53㎡)

    3,490万円

よく見られている物件

  1. 広島市佐伯区八幡東4丁目

    4LDK (110.53㎡)

    2,880万円

  2. 広島市西区古江西町

    3LDK (90.67㎡)

    4,480万円

  3. 広島市佐伯区美鈴が丘西4丁目

    4LDK (100.60㎡)

    4,090万円

  4. 広島市安佐北区亀崎1丁目

    3LDK (82.81㎡)

    3,280万円

広島市安佐南区上安7丁目 新築一戸建て(全2棟)

お気軽にお問い合わせください

LINEからお問い合わせ 無料お問い合わせ

丸和不動産販売株式会社

0800-200-8080

9:00~18:00

(休:祝祭日・年末年始、GW、夏季休暇 )