東広島市西条町田口 新築一戸建て(全2棟) 2号棟

2,690万円

広島県東広島市西条町田口 

バス「東子」バス停

価格
2,690万円
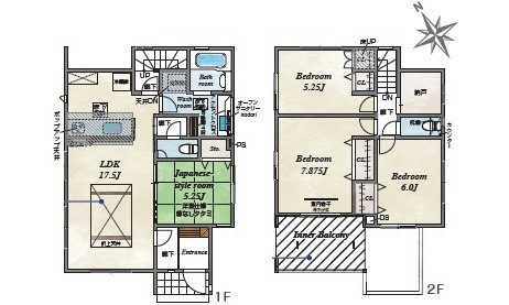
間取り
4LDK
土地面積
168.27㎡
所在地
広島県東広島市西条町田口 
交通

バス「東子」バス停下車 徒歩8分

建物面積
112.61㎡
築年月
2026年1月(新築)

物件の特徴

  • 室内洗濯機置場

  • TVモニタ付きインターホン

  • カウンターキッチン

  • 浴室乾燥機

セールスポイント

【案内予約受付中!】
◆敷地面積広々50坪
◆長期優良住宅◆オール電化の省エネ住宅
◆無料点検実施(引渡後3ヶ月・2年・5年・10年)
◆5.2帖の和室と続き間の広々17.5帖のLDK
◆収納スペース豊富です♪

ポイント

南面バルコニー 温水洗浄便座 IHクッキングヒーター 食器洗乾燥機 LDK15帖以上

担当者のコメント

【案内予約受付中!】
◆敷地面積広々50坪
◆長期優良住宅◆オール電化の省エネ住宅
◆無料点検実施(引渡後3ヶ月・2年・5年・10年)
◆5.2帖の和室と続き間の広々17.5帖のLDK
◆収納スペース豊富です♪

基本情報

販売戸数
1戸
総戸数
2戸
間取り / 詳細
4LDK
LDK 17.5帖 1室/和室 5.2帖 1室/洋室 7.8帖 1室/洋室 6.0帖 1室/洋室 5.2帖 1室
向き
-
建物面積(坪数)
112.61㎡(34.06坪)
土地面積(坪数)
168.27㎡(50.90坪)
建ぺい率 /
容積率
50%/100%
築年月
2026年1月(新築)
駐車場 /
月額料金
有(3台) 0円
土地権利
所有権
土地
(敷金 / 保証金)
- / -
建物構造
木造 / 2階建
傾斜地部分面積
-
路地状敷地
-
私道負担面積
-
セットバック
高圧線下面積
-
施工会社
-
用途地域
第一種低層住居専用
地目 / 地勢
宅地 / -
接道状況
一方(南 公道 4.2m)
国土法届出要否
不要
都市計画
市街化区域
総区画数 /
販売区画数
2区画/1区画
現況
完成済み
その他
法令上の制限
-
取引態様
仲介
引渡し
即時
取引条件の
有効期限
2026年01月28日

設備条件

設備条件
  • 閑静な住宅地 / 室内洗濯機置場 / 公営水道 / 公共下水 / オール電化 / 24時間換気システム / 駐車3台可 / 耐震構造 / コンロ2口以上 / 食器洗い乾燥機 / システムキッチン / カウンターキッチン / 電気コンロ / コンロ3口 / 追焚機能浴室 / 浴室乾燥機 / 温水洗浄便座 / 洗髪洗面化粧台 / トイレ2ヶ所 / 浴室1坪以上 / 床下収納 / ウォークインクロゼット / 収納豊富 / TVモニタ付インターホン / 複層ガラス
設備(その他)
    公営水道、公共下水、オール電化

その他

物件番号
100079110
管理コード
36647
建築確認番号
第R07SHC116670号
情報更新日
2026年01月14日
次回更新予定日
2026年01月28日
取扱会社
  • 丸和不動産販売株式会社
  • 広島県広島市西区庚午中4丁目6-1-202 セントラル桑原
  • TEL:0800-200-8080
  • 広島県知事 (1) 第11171号
備考
◆◇◆◇◆◇◆◇◆◇◆◇◆◇◆◇◆◇◆◇◆◇◆◇◆◇◆◇◆◇◆◇◆◇◆◇◆◇◆◇◆

《取り扱い物件多数!他にもご紹介可能!》

本物件の他にオリジナル物件なども多数取り扱っております!
↓↓丸和不動産販売ホームページはこちら
https://maruwa-fud.co.jp/
当社ホームページに掲載されていない物件でもご紹介可能ですので、お気軽にお問い合わせください。 既に気になる物件がおありのお客様からの個別相談も受け付けております。

《不動産のことなら何でもご相談ください!》

仲介・建売・買取再販・リフォーム工事・注文住宅等、不動産のことなら何でも手掛けております。 駐車場も完備しておりますのでお気軽にお越しください。

《住宅ローンに自信あり!》

経験と実績豊富なスタッフが対応しますので、お客様に最適な金融機関、納得のいくご提案ができます。 住宅ローンに不安をお持ちの方も、既に住宅ローンを否決されてしまった方も、まずは当社にご相談ください!

《お問い合わせ方法いろいろ♪》

・お電話(フリーダイアル) ・メール ・ラインでのお問い合わせもはじめました! ↓↓ https://lin.ee/OnuFEBC もしくはライン公式アカウント『丸和不動産販売』で検索下さい♪

◆◇◆◇◆◇◆◇◆◇◆◇◆◇◆◇◆◇◆◇◆◇◆◇◆◇◆◇◆◇◆◇◆◇◆◇◆◇◆◇◆

東広島市西条町田口 新築一戸建て(全2棟)の他の物件

  1. 1号棟

    4LDK (115.93㎡)

    2,790万円(79.58万円/坪)

周辺施設

  • セブンイレブン 東広島西条東子店の画像

    コンビニエンスストア

    セブンイレブン 東広島西条東子店

    670m(9分)

  • さんくす薬局田口店の画像

    ドラッグストア

    さんくす薬局田口店

    674m(9分)

  • SHOJI(ショージ) 田口店の画像

    スーパー

    SHOJI(ショージ) 田口店

    801m(11分)

  • JA広島中央向陽支店の画像

    銀行

    JA広島中央向陽支店

    1229m(16分)

  • サイエンスパーク前郵便局の画像

    郵便局

    サイエンスパーク前郵便局

    1680m(21分)

  • 東広島市立向陽中学校の画像

    中学校

    東広島市立向陽中学校

    1905m(24分)

  • 東広島市立板城小学校の画像

    小学校

    東広島市立板城小学校

    2425m(31分)

支払いシミュレーション

月々の支払額
9.6
購入希望物件価格
万円
頭金
万円
金利
%
返済額(ボーナス1回分)
万円
返済期間

※ボーナスは自動で年2回分で計算されます。

近隣の物件

  1. 東広島市黒瀬楢原北2丁目 新築一戸建て

    東広島市黒瀬楢原北2丁目

    4LDK (109.30㎡)

    2,477万円

  2. 東広島市西条町寺家字平岩 新築一戸建て

    東広島市西条町寺家

    3LDK (110.12㎡)

    3,880万円

  3. 東広島市高屋高美が丘4丁目 中古一戸建て

    東広島市高屋高美が丘4丁目

    3SLDK (132.49㎡)

    2,399万円

  4. 東広島市西条町御薗宇 新築一戸建て(全6棟)

    東広島市西条町御薗宇

    3LDK (94.39㎡)

    3,693万円

東広島市西条町田口 新築一戸建て(全2棟)

東広島市西条町田口 新築一戸建て(全2棟)

2,690万円

-

4LDK(112.61㎡)

お気軽にお問い合わせください

LINEからお問い合わせ 無料お問い合わせ

丸和不動産販売株式会社

0800-200-8080

9:00~18:00

(休:祝祭日・年末年始、GW、夏季休暇 )